Esti interesat de aceasta proprietate ?
Camere
2
Suprafata utila
54 mp
Etaj
Etaj 3
Bai
1
- ID:P578
- Nr. camere:2
- Nr. dormitoare:1
- S. utila:54.00 mp
- S. balcoane:4.00 mp
- S. construita:58.00 mp
- Comp.:Semidecomandat
- Confort:1
- Etaj:Etaj 3
- Nr. bucatarii:1
- Nr. bai:1
- Nr. balcoane:1
- Tip imobil:Bloc
- Regim inaltime:P+3+M
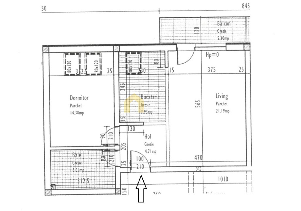
Descriere
Apartament disponibil spre închiriere, situat în Florești, pe strada Șesul de Sus, la etajul 3 al unui bloc din anul 2008.
Compartimentare: bucătărie cu living open-space, dormitor, baie și balcon. Livingul are acces către balcon, iar dormitorul și bucătăria sunt iluminate natural prin ferestre tip VELUX.
Apartamentul beneficiază de un loc de parcare amplasat pe lateralul blocului.
Citeste mai mult
Compartimentare: bucătărie cu living open-space, dormitor, baie și balcon. Livingul are acces către balcon, iar dormitorul și bucătăria sunt iluminate natural prin ferestre tip VELUX.
Apartamentul beneficiază de un loc de parcare amplasat pe lateralul blocului.
Specificatii
Curent
Apa
Canalizare
Gaz
Centrala proprie
Izolatie Exterior
Parchet
Complet mobilat






