0% comision
Apartament 2 camere de vânzare | SU 54 mp + 50 mp terasă | Boxă | Florești
Floresti, Sesul de Sus
106.000€










Esti interesat de aceasta proprietate ?
Camere
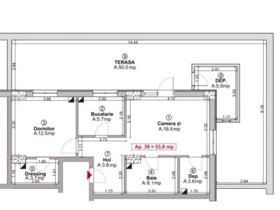
2
Suprafata utila
53.88 mp
Etaj
Parter
Bai
1
- ID:P618
- Nr. camere:2
- Nr. dormitoare:1
- S. utila:53.88 mp
- S. terase:49.99 mp
- Etaj:Parter
- Nr. bucatarii:1
- Nr. bai:1
- Tip imobil:Bloc
- Regim inaltime:D+P+2
- Orientare:Nord-Vest
Descriere
Cu o suprafață utilă de 54 mp, apartamentul beneficiază de o terasă generoasă de 50 mp și o boxă de depozitare de 5 mp, oferind confort și spațiu suplimentar.
Configurația interioară este eficient gândită – dormitor matrimonial cu dressing și acces direct pe terasă atât din living, cât și din dormitor.
Bucătăria este separată, iar baia este prevăzută cu cadă, cu posibilitatea de a fi adaptată pentru cabina de duș, în funcție de preferințele viitorului proprietar.
Detalii importante:
- orientare Vest;
- centrală termică proprie;
- semifinisat (cu posibilitate de finisare la dorința cumpărătorului);
- acces rapid la transport public și facilități urbane.
Drumul de acces are o lățime de 7 metri, dispune de trotuare, spații verzi amenajate și locuri de parcare pentru fiecare apartament.
Strada este asfaltată, iluminată public, iar stația de autobuz Cluj–Florești se află la doar 8 minute de mers pe jos.
Detalii zona:
Ansamblul Green Residence, situat in zona Terra, oferă apartamente luminoase, cu vedere deschisă spre spații verzi și dealuri, ideale pentru cei care își doresc liniște și aer curat, departe de agitația urbană dar ușor accesibil.
Complexul a fost construit în 2024, folosind materiale de calitate și utilități moderne, garantat fără probleme tehnice.
Apartamentele, disponibile în variante de 1, 2 și 3 camere, se evidențiază printr-o compartimentare eficientă și un ambient confortabil.
Accesul este facil, realizându-se din trei direcții – iar zona se remarcă printr-un cadru natural aerisit, cu regim redus de înălțime și o comunitate liniștită.
Se acceptă plată cash, credit ipotecar sau programul Prima Casă.
Citeste mai mult
Configurația interioară este eficient gândită – dormitor matrimonial cu dressing și acces direct pe terasă atât din living, cât și din dormitor.
Bucătăria este separată, iar baia este prevăzută cu cadă, cu posibilitatea de a fi adaptată pentru cabina de duș, în funcție de preferințele viitorului proprietar.
Detalii importante:
- orientare Vest;
- centrală termică proprie;
- semifinisat (cu posibilitate de finisare la dorința cumpărătorului);
- acces rapid la transport public și facilități urbane.
Drumul de acces are o lățime de 7 metri, dispune de trotuare, spații verzi amenajate și locuri de parcare pentru fiecare apartament.
Strada este asfaltată, iluminată public, iar stația de autobuz Cluj–Florești se află la doar 8 minute de mers pe jos.
Detalii zona:
Ansamblul Green Residence, situat in zona Terra, oferă apartamente luminoase, cu vedere deschisă spre spații verzi și dealuri, ideale pentru cei care își doresc liniște și aer curat, departe de agitația urbană dar ușor accesibil.
Complexul a fost construit în 2024, folosind materiale de calitate și utilități moderne, garantat fără probleme tehnice.
Apartamentele, disponibile în variante de 1, 2 și 3 camere, se evidențiază printr-o compartimentare eficientă și un ambient confortabil.
Accesul este facil, realizându-se din trei direcții – iar zona se remarcă printr-un cadru natural aerisit, cu regim redus de înălțime și o comunitate liniștită.
Se acceptă plată cash, credit ipotecar sau programul Prima Casă.
Specificatii
Curent
Apa
Canalizare
Gaz
Centrala proprie
Calorifere
Nemobilat
Localizare
Recomandari
TOP
Apartament de vânzare | 2 camere, clasa A, Parcare | Baciu
Dambul-Rotund / Calea Baciului
120.000€
0% comision
Apartament 3 camere | SU 62 mp | balcon 13 mp | Zona Urusagului - Floresti
Sesul de Sus
94.000€
0% comision
Apartament 3 camere finisat de vânzare | SU 49 mp+terasă 46 mp | Boxă | Florești
Sesul de Sus
115.000€
Apartament de vânzare | 3 camere, SU 62 mp, terasa 13mp | Urusagului - Florești
Sesul de Sus
93.000€