Aceasta proprietate a fost deja inchiriata! Pentru oferte similare contactati agentul
inchiriat
Apartament de închiriat | 3 camere, 2 băi, parcare subterană | Florești - Teilor
Floresti, Teilor
400€









Esti interesat de aceasta proprietate ?
Camere
3
Suprafata utila
71.06 mp
Etaj
Etaj 2
Bai
2
Parcari
1
An constructie
2020
- ID:P436
- Nr. camere:3
- Nr. dormitoare:2
- S. utila:71.06 mp
- S. balcoane:10.00 mp
- Comp.:Semidecomandat
- Etaj:Etaj 2
- Nr. bucatarii:1
- Nr. bai:2
- Nr. balcoane:2
- Nr. parcari:1
- Pret parcare:50€
- An constructie:2020
- Structura:Caramida
- Tip imobil:Casa/Vila
- Regim inaltime:P+5
- Orientare:Nord-Vest
- Garantie:1 chirie
Descriere
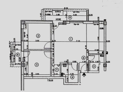
Se oferă spre închiriere un apartament modern și bine compartimentat, situat în Florești într-un imobil finalizat în 2020, cu lift și acces direct către parcarea subterană.
Apartamentul este la prima închiriere.
Detalii generale:
Suprafață utilă: 71 mp + 2 balcoane (7 mp și 3 mp).
Etajul 2 din 5 (intermediar).
Încălzire în pardoseală.
Parcare subterană la cerere contracost (50 euro/lună).
Compartimentare:
La intrare se află un hol amenajat cu spațiu pentru depozitare papuci și cuier. Livingul este spațios și luminos, cu acces la un balcon de 7 mp. Bucătăria este separată și include un mic spațiu pentru servirea mesei, de asemenea dispune de o masă generoasă in living pentru mese cu prietenii și familia.
În partea stângă a apartamentului se află două dormitoare cu paturi duble și spații de depozitare generoase. Livingul are, de asemenea, un dressing separat.
Apartamentul dispune de două băi moderne, cu calorifere tip scară. Dormitoarele sunt orientate spre vest, beneficiind de lumină naturală pe tot parcursul după-amiezii.
Dotări și beneficii:
- bucătărie separată complet, mobilată și utilată;
- TV in dormitor;
- extra siguranță asigurată de bariera cu acces numai pentru vecini și musafiri:
- mașină de spalat haine;
- 2 băi moderne, cu vană;
- 2 dormitoare cu mobilier complet;
- dressing și spații multiple de depozitare;
- încălzire în pardoseală;
- lift cu acces direct către parcarea subterană.
Disponibil imediat.
Citeste mai mult
Apartamentul este la prima închiriere.
Detalii generale:
Suprafață utilă: 71 mp + 2 balcoane (7 mp și 3 mp).
Etajul 2 din 5 (intermediar).
Încălzire în pardoseală.
Parcare subterană la cerere contracost (50 euro/lună).
Compartimentare:
La intrare se află un hol amenajat cu spațiu pentru depozitare papuci și cuier. Livingul este spațios și luminos, cu acces la un balcon de 7 mp. Bucătăria este separată și include un mic spațiu pentru servirea mesei, de asemenea dispune de o masă generoasă in living pentru mese cu prietenii și familia.
În partea stângă a apartamentului se află două dormitoare cu paturi duble și spații de depozitare generoase. Livingul are, de asemenea, un dressing separat.
Apartamentul dispune de două băi moderne, cu calorifere tip scară. Dormitoarele sunt orientate spre vest, beneficiind de lumină naturală pe tot parcursul după-amiezii.
Dotări și beneficii:
- bucătărie separată complet, mobilată și utilată;
- TV in dormitor;
- extra siguranță asigurată de bariera cu acces numai pentru vecini și musafiri:
- mașină de spalat haine;
- 2 băi moderne, cu vană;
- 2 dormitoare cu mobilier complet;
- dressing și spații multiple de depozitare;
- încălzire în pardoseală;
- lift cu acces direct către parcarea subterană.
Disponibil imediat.
Specificatii
Curent
Apa
Canalizare
Gaz
Centrala proprie
Incalzire pardoseala
Calorifere
Semineu
Izolatie Exterior
Vopsea lavabila
Parchet
Gresie
Ferestre Termopan
Usa intrare Metal
Usa interior Celulare
Dressing
Bucatarie Mobilata
Bucatarie Utilata
Apometre
Contor gaz
Complet mobilat
Interfon
Lift
Curte comuna