Esti interesat de aceasta proprietate ?
Camere
3
Suprafata utila
70 mp
Etaj
Parter
Bai
1
- ID:P443
- Nr. camere:3
- Nr. dormitoare:2
- S. utila:70.00 mp
- S. construita:78.00 mp
- Comp.:Semidecomandat
- Etaj:Parter
- Nr. bucatarii:1
- Nr. bai:1
- Regim inaltime:P+2
- Orientare:Nord
Descriere
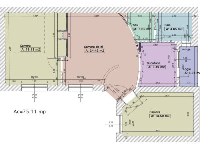
Propunem spre vânzare un apartament spațios și bine compartimentat, situat într-o curte interioară, pe Bulevardul 21 Decembrie 1989, vis-a-vis de Sora, în zona centrală a Clujului. Apartamentul dispune de 3 camere, dintre care 2 dormitoare au amenajate subpante,in care s-au adaptat spații de dormit confortabile.
Locuința este situată la parter înalt, cu acces direct dintr-o terasă proprie, perfectă pentru relaxare sau pentru utilizare funcțională. Camerele sunt înalte (aproximativ 4 metri), ceea ce oferă senzația de spațiu și luminozitate. În plus, apartamentul dispune de o boxă la demisol, ideală pentru depozitare suplimentară.
Compartimentare:
- Living generos, cu acces direct din terasă, bucatarie cu acces spre un luminator
- 2 dormitoare subpanta, funcționale și bine iluminate
- hol cu nisa generoasa de depozitare
- baie cu cada si geam
Facilități:
Terasă proprie cu acces direct din apartament
Boxă la demisol – perfectă pentru depozitare
Curte interioară comună, fără acces auto – mai multă liniște și intimitate
Avantaje:
Localizare ultracentrală, pe Bulevardul 21 Decembrie 1989, vis-a-vis de Sora, în apropiere de magazine, restaurante, cafenele și transport public
Ideal atât pentru locuit, cât și pentru închiriere sau activități profesionale (cabinete de avocatură/notariale)
Înălțime generoasă a camerelor, aproximativ 4 metri, care conferă un spațiu aerisit și confortabil.
Regim de înălțime al imobilului: parter + 2 etaje + pod
Va invit sa programati o vizita, apartamentul nu este locuit si cheile sunt in agentie.
Citeste mai mult
Locuința este situată la parter înalt, cu acces direct dintr-o terasă proprie, perfectă pentru relaxare sau pentru utilizare funcțională. Camerele sunt înalte (aproximativ 4 metri), ceea ce oferă senzația de spațiu și luminozitate. În plus, apartamentul dispune de o boxă la demisol, ideală pentru depozitare suplimentară.
Compartimentare:
- Living generos, cu acces direct din terasă, bucatarie cu acces spre un luminator
- 2 dormitoare subpanta, funcționale și bine iluminate
- hol cu nisa generoasa de depozitare
- baie cu cada si geam
Facilități:
Terasă proprie cu acces direct din apartament
Boxă la demisol – perfectă pentru depozitare
Curte interioară comună, fără acces auto – mai multă liniște și intimitate
Avantaje:
Localizare ultracentrală, pe Bulevardul 21 Decembrie 1989, vis-a-vis de Sora, în apropiere de magazine, restaurante, cafenele și transport public
Ideal atât pentru locuit, cât și pentru închiriere sau activități profesionale (cabinete de avocatură/notariale)
Înălțime generoasă a camerelor, aproximativ 4 metri, care conferă un spațiu aerisit și confortabil.
Regim de înălțime al imobilului: parter + 2 etaje + pod
Va invit sa programati o vizita, apartamentul nu este locuit si cheile sunt in agentie.
Specificatii
Curent
Apa
Canalizare
Gaz
Acces internet
Centrala proprie
Izolatie Exterior
Vopsea lavabila
Parchet
Boxa la subsol
Bucatarie Mobilata
Apometre
Contor gaz
Partial mobilat
Interfon











