Aceasta proprietate a fost deja vanduta! Pentru oferte similare contactati agentul
0% comision
Reprezentare exclusiva
vandut
Apartament de vânzare | 3 camere | Str. Eroilor, Florești sens giratoriu
Floresti, Eroilor
104.000€










Esti interesat de aceasta proprietate ?
Camere
3
Suprafata utila
60.81 mp
Etaj
Parter
Bai
1
An constructie
2012
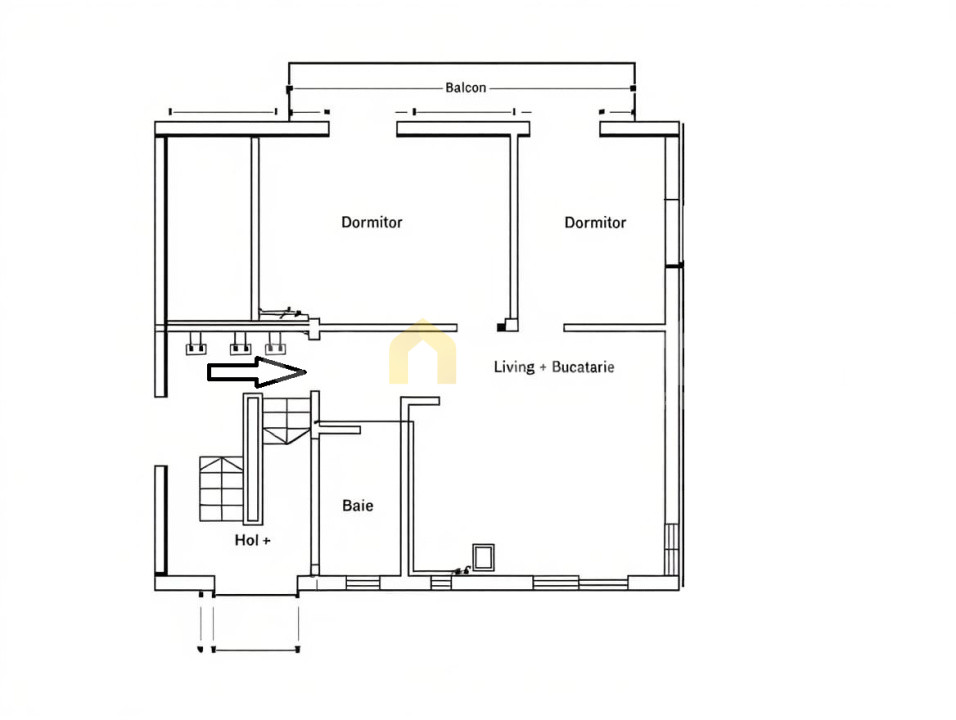
- ID:P531
- Nr. camere:3
- Nr. dormitoare:2
- S. utila:60.81 mp
- S. balcoane:8.00 mp
- S. construita:68.61 mp
- Comp.:Semidecomandat
- Etaj:Parter
- Nr. bucatarii:1
- Nr. bai:1
- Nr. balcoane:1
- An constructie:2012
- Regim inaltime:P+2
- Orientare:Vest
Descriere
Vând apartament spațios, situat la parter înalt într-un bloc mic cu 2 etaje, într-o zonă foarte liniștită chiar la începutul străzii Eroilor, langa sensul giratoriu, dar retras de trafic - parchet nou, usi interioare, bucatarie executata la comanda!
Apartamentul are o suprafață totală de 60 mp și este împărțit astfel:
- living open-space cu bucătărie;
- 2 dormitoare separate;
- baie cu geam;
- balcon mare cu acces din ambele dormitoare.
Locația e super bună – e la doar 1 minut de mers pe jos de sensul giratoriu și stația de autobuz, Lidl, Mega Image, farmacii, bănci, carmangerii și alte magazine.
În zonă mai sunt și grădiniță și școală, foarte aproape, ideal pentru o familie.
Pentru mai multe detalii, mă puteți suna direct: 0770485072.
Citeste mai mult
Apartamentul are o suprafață totală de 60 mp și este împărțit astfel:
- living open-space cu bucătărie;
- 2 dormitoare separate;
- baie cu geam;
- balcon mare cu acces din ambele dormitoare.
Locația e super bună – e la doar 1 minut de mers pe jos de sensul giratoriu și stația de autobuz, Lidl, Mega Image, farmacii, bănci, carmangerii și alte magazine.
În zonă mai sunt și grădiniță și școală, foarte aproape, ideal pentru o familie.
Pentru mai multe detalii, mă puteți suna direct: 0770485072.
Specificatii
Curent
Apa
Canalizare
Gaz
Centrala proprie
Localizare
Recomandari
0% comision
Apartament 3 camere | SU 62 mp | balcon 13 mp | Zona Urusagului - Floresti
Sesul de Sus
94.000€
0% comision
Apartament 3 camere finisat de vânzare | SU 49 mp+terasă 46 mp | Boxă | Florești
Sesul de Sus
115.000€
Apartament de vânzare | 3 camere, SU 62 mp, terasa 13mp | Urusagului - Florești
Sesul de Sus
93.000€
0% comision
Apartament 3 Camere de Vânzare | SU 60.07 mp | Florești, zona Terra
Sesul de Sus
90.105€