0% comision
Casă de vânzare, 4 camere, SU 103 mp, curte 66mp | Florești, Poligon
Floresti, Subcetate
215.000€






Esti interesat de aceasta proprietate ?
Camere
4
Suprafata utila
103 mp
Bai
2
An constructie
2008
- ID:P615
- Nr. camere:4
- Nr. dormitoare:3
- S. utila:103.00 mp
- S. construita:123.20 mp
- S. teren:128.00 mp
- Nr. bucatarii:1
- Nr. bai:2
- Nr. balcoane:1
- Nr. parcari:2
- An constructie:2008
- An renovare:2020
- Structura rezistenta:Caramida
- Regim inaltime:P+M
- Clasa energetica:B
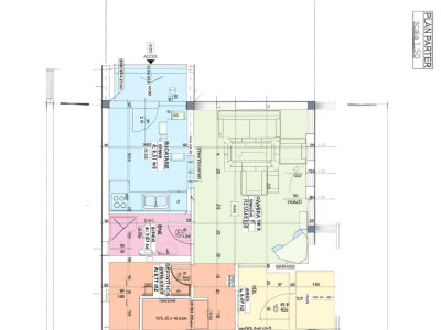
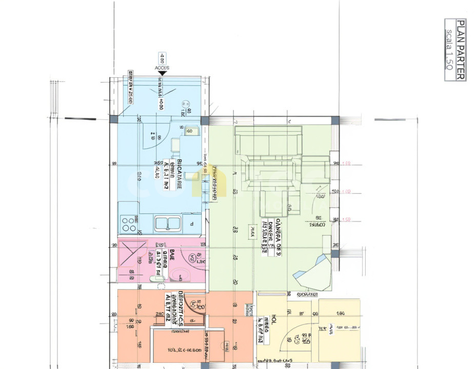
Descriere
Casă de vânzare în Florești, situată într-o zonă liniștită, în apropierea parcului și cu acces rapid spre centura către Cluj-Napoca.
Locuința a fost construită în 2008 și achiziționată la stadiul de semifinisat.
La parter se află zona de living, bucătăria orientată spre nord cu acces direct în curtea privată de aproximativ 66 mp și o baie cu duș (cu geam)
Etajul este compartimentat în trei camere: două dormitoare orientate spre nord, inclusiv dormitorul matrimonial, și o cameră amenajată în prezent ca dressing, cu balcon propriu. Unul dintre dormitoare are balcon francez. La acest nivel se află și a doua baie, dotată cu vană și geam.
Proprietatea dispune și de spațiu de depozitare exterior, precum și de două locuri de parcare in fața curții.
Citeste mai mult
Locuința a fost construită în 2008 și achiziționată la stadiul de semifinisat.
La parter se află zona de living, bucătăria orientată spre nord cu acces direct în curtea privată de aproximativ 66 mp și o baie cu duș (cu geam)
Etajul este compartimentat în trei camere: două dormitoare orientate spre nord, inclusiv dormitorul matrimonial, și o cameră amenajată în prezent ca dressing, cu balcon propriu. Unul dintre dormitoare are balcon francez. La acest nivel se află și a doua baie, dotată cu vană și geam.
Proprietatea dispune și de spațiu de depozitare exterior, precum și de două locuri de parcare in fața curții.
Specificatii
Curent
Apa
Canalizare
Gaz
Izolatie Exterior
Vopsea lavabila
Faianta
Parchet
Gresie
Ferestre Termopan
Usa intrare PVC
Dressing
Bucatarie Mobilata
Apometre
Contor gaz
Complet mobilat
Localizare
Recomandari
TOP
0% comision
Casa de vânzare | 3 dormitoare, 2 băi, parcare acoperită | Florești
Floresti
235.000€
Casă individuală | SU 201 mp | 4 camere + garaj de 40mp | Popești Deal, Cluj
Exterior Nord / Popesti
245.000€