Aceasta proprietate a fost deja inchiriata! Pentru oferte similare contactati agentul
Esti interesat de aceasta proprietate ?
Camere
3
Suprafata utila
83 mp
Etaj
Etaj 1
- ID:P652
- Nr. camere:3
- S. utila:83.00 mp
- Etaj:Etaj 1
- Nr. bai:1
- Terase:1
- An renovare:2025
- Structura rezistenta:Caramida
- Regim inaltime:P+3
- Garantie:1
Descriere
Spațiu de birouri disponibil spre închiriere într-o zonă foarte bine poziționată, în apropiere de Platina Shopping Center, cu acces rapid către centrul orașului și principalele puncte de interes.
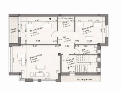
Proprietatea are o suprafață utilă de 83 mp și este compartimentată eficient în 3 birouri separate, zonă de recepție, baie și terasă, oferind un cadru potrivit pentru desfășurarea activității unei firme care își dorește un spațiu funcțional și reprezentativ.
Spațiul este luminos, recent renovat și beneficiază de o atmosferă plăcută, ușor de adaptat diferitelor tipuri de activitate: birouri de consultanță, servicii, IT, avocatură sau alte activități administrative.
Un avantaj important îl reprezintă locul de parcare inclus, într-o zonă unde accesul facil și confortul contează mult.
Poziționarea foarte bună, aproape de centru, de mijloace de transport, restaurante, bănci și alte servicii, îl face o alegere practică pentru orice business care caută vizibilitate și accesibilitate.
Citeste mai mult
Proprietatea are o suprafață utilă de 83 mp și este compartimentată eficient în 3 birouri separate, zonă de recepție, baie și terasă, oferind un cadru potrivit pentru desfășurarea activității unei firme care își dorește un spațiu funcțional și reprezentativ.
Spațiul este luminos, recent renovat și beneficiază de o atmosferă plăcută, ușor de adaptat diferitelor tipuri de activitate: birouri de consultanță, servicii, IT, avocatură sau alte activități administrative.
Un avantaj important îl reprezintă locul de parcare inclus, într-o zonă unde accesul facil și confortul contează mult.
Poziționarea foarte bună, aproape de centru, de mijloace de transport, restaurante, bănci și alte servicii, îl face o alegere practică pentru orice business care caută vizibilitate și accesibilitate.
Specificatii
Curent
Apa
Canalizare
Gaz
Acces internet
Utilitati in zona
Centrala proprie
Calorifere
Aer conditionat
Izolatie Exterior
Vopsea lavabila
Parchet
Gresie
Ferestre PVC
Spoturi
Aplice
Lumina naturala
Parcare proprie
Apometre
Nemobilat
Control electric individual





