Aceasta proprietate a fost deja inchiriata! Pentru oferte similare contactati agentul
0% comision
inchiriat
Parter de inchiriat in SU 300 mp | Cladire moderna | Cartier Europa
Cluj-Napoca, Europa / Eugen Ionesco
2.500€ + TVA










Esti interesat de aceasta proprietate ?
Camere
3
Suprafata utila
300 mp
Etaj
Parter
Parcari
7
- ID:P502
- Nr. camere:3
- S. utila:300.00 mp
- S. per etaj:300 mp
- S. curte:150.00 mp
- Comp.:Partial compartimentat
- Etaj:Parter
- Nr. bai:2
- Terase:1
- Nr. parcari:7
- Structura rezistenta:Caramida
- Regim inaltime:P+2
- Garantie:minim 2 luni
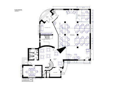
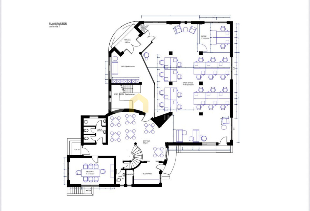
Descriere
Situată în cartierul Europa, una dintre cele mai apreciate zone de birouri din Cluj-Napoca, această clădire care se închiriază, oferă spații luminoase, eficiente și flexibile, potrivite pentru companii din domenii diverse – IT, servicii, consultanță, servicii online si alte activități fără aflux semnificativ de public.
Specificații și dotări Parter : spații open-space și birouri individuale; 2 grupuri sanitare ; sistem de climatizare și încălzire; acces securizat; locuri de parcare private (7 disponibile); posibilitate de branding exterior, acces facil către centrul orașului și principalele artere rutiere.
Construcția se remarcă printr-un design modern, compartimentare eficientă și finisaje de calitate. Parterul are capacitatea de a gazdui cca 25 de posturi.
Cladirea beneficiază de acces rapid către zona centrală, Calea Turzii și Centura Sud, fiind amplasată într-un cartier în plină dezvoltare, cu infrastructură modernă și facilități în proximitate.
Această locație oferă un cadru perfect pentru succesul afacerii tale.
Disponibilitatea spatiului este imediata.
Contactează-mă pentru detalii și vizionare!
Citeste mai mult
Specificații și dotări Parter : spații open-space și birouri individuale; 2 grupuri sanitare ; sistem de climatizare și încălzire; acces securizat; locuri de parcare private (7 disponibile); posibilitate de branding exterior, acces facil către centrul orașului și principalele artere rutiere.
Construcția se remarcă printr-un design modern, compartimentare eficientă și finisaje de calitate. Parterul are capacitatea de a gazdui cca 25 de posturi.
Cladirea beneficiază de acces rapid către zona centrală, Calea Turzii și Centura Sud, fiind amplasată într-un cartier în plină dezvoltare, cu infrastructură modernă și facilități în proximitate.
Această locație oferă un cadru perfect pentru succesul afacerii tale.
Disponibilitatea spatiului este imediata.
Contactează-mă pentru detalii și vizionare!
Specificatii
Curent
Apa
Canalizare
Gaz
Acces internet
Centrala proprie
Aer conditionat
Control individual AC
Vopsea lavabila
Parchet
Ferestre Termopan
Lampi
Spoturi
Iluminat interior sistem LED
Parcare proprie
Nemobilat
Curte