Esti interesat de aceasta proprietate ?
Camere
7
Suprafata utila
143.31 mp
Etaj
Parter
Parcari
15
- ID:P556
- Nr. camere:7
- S. utila:143.31 mp
- Comp.:Partial compartimentat
- Etaj:Parter
- Nr. bai:6
- Nr. parcari:15
Descriere
Spatiu de birouri de inchiriat
Spațiul face parte dintr-o construcție nouă (depozit), însă beneficiază de intrare separată și este complet independent din punct de vedere al fluxului de acces. Este ideal pentru companii care au nevoie de un sediu reprezentativ, showroom sau birouri operaționale într-o zonă logistică.
Caracteristici principale:
Stare: Spațiul este nou, la prima inchiriere, finisat la standarde moderne.
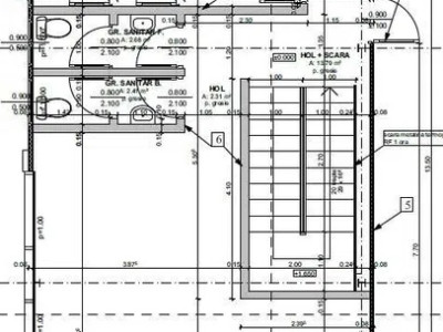
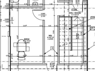
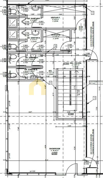
Suprafață utilă totală: 143,31 m² (dispus pe Parter și Etaj).
Parter: Zonă generoasă de Showroom / Open-space (aprox. 38 mp), hol acces, scară interioară și grupuri sanitare multiple (inclusiv vestiare).
Etaj: Două zone de birouri luminoase, oficiu (chicinetă) / loc de luat masa și grupuri sanitare suplimentare.
Lumină naturală: Ferestre mari pe ambele niveluri, oferind un mediu de lucru productiv și luminos.
Finisaje și Dotări:
Tavan casetat cu iluminat LED integrat.
Pardoseli din gresie de trafic intens.
Grupuri sanitare complet utilate.
Încălzire eficientă și compartimentare modernă.
Avantaje locație:
Acces facil din drumul principal în Sânnicoară cat si din centura.
Intrare complet independentă față de activitatea depozitului.
Proximitate față de centura Vâlcele-Apahida și aeroport.
.
Citeste mai mult
Spațiul face parte dintr-o construcție nouă (depozit), însă beneficiază de intrare separată și este complet independent din punct de vedere al fluxului de acces. Este ideal pentru companii care au nevoie de un sediu reprezentativ, showroom sau birouri operaționale într-o zonă logistică.
Caracteristici principale:
Stare: Spațiul este nou, la prima inchiriere, finisat la standarde moderne.
Suprafață utilă totală: 143,31 m² (dispus pe Parter și Etaj).
Parter: Zonă generoasă de Showroom / Open-space (aprox. 38 mp), hol acces, scară interioară și grupuri sanitare multiple (inclusiv vestiare).
Etaj: Două zone de birouri luminoase, oficiu (chicinetă) / loc de luat masa și grupuri sanitare suplimentare.
Lumină naturală: Ferestre mari pe ambele niveluri, oferind un mediu de lucru productiv și luminos.
Finisaje și Dotări:
Tavan casetat cu iluminat LED integrat.
Pardoseli din gresie de trafic intens.
Grupuri sanitare complet utilate.
Încălzire eficientă și compartimentare modernă.
Avantaje locație:
Acces facil din drumul principal în Sânnicoară cat si din centura.
Intrare complet independentă față de activitatea depozitului.
Proximitate față de centura Vâlcele-Apahida și aeroport.
.
Specificatii
Curent
Apa
Canalizare
Izolatie Exterior
Vopsea lavabila
Parchet
Ferestre Termopan
Lampi
Spoturi
Nemobilat







