Esti interesat de aceasta proprietate ?
Suprafata utila
67.10 mp
Etaj
Demisol
An constructie
2010
- ID:P659
- S. utila:67.10 mp
- Comp.:Compartimentat
- Etaj:Demisol
- Nr. bai:1
- An constructie:2010
- An renovare:2025
- Structura rezistenta:Caramida
- Tip imobil:Bloc
- Regim inaltime:D+P+2
Descriere
Vă propunem spre vânzare un spațiu ideal pentru birouri, situat în cartierul Andrei Mureșanu, într-o zonă liniștită.
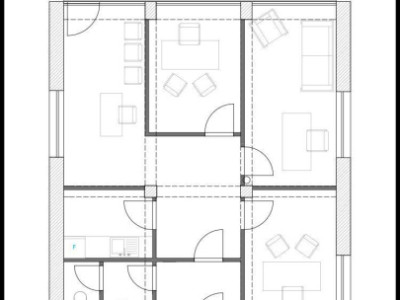
Suprafața totală este de 67,1 mp, compartimentați astfel: 3 încăperi, baie, oficiu și hol/secretariat.
Spațiul este recent renovat, finisat și se află la demisolul unui bloc cu două etaje.
Compartimentarea si finisajele sunt potrivite pentru birou fiind pregătit pentru utilizare imediată.
Zona Andrei Mureșanu oferă acces rapid către centru, fiind una dintre cele mai apreciate zone pentru birouri boutique.
Potrivit pentru:
• firme mici sau start-up-uri (IT, marketing, contabilitate, consultanță);
• avocați, notari, arhitecți, designeri;
• cabinete de psihologie, coaching, terapii;
• freelanceri sau echipe de 3–8 persoane;
• activități de tip office sau servicii profesionale.
Pentru detalii suplimentare și programarea vizionării, vă stau la dispoziție.
Citeste mai mult
Suprafața totală este de 67,1 mp, compartimentați astfel: 3 încăperi, baie, oficiu și hol/secretariat.
Spațiul este recent renovat, finisat și se află la demisolul unui bloc cu două etaje.
Compartimentarea si finisajele sunt potrivite pentru birou fiind pregătit pentru utilizare imediată.
Zona Andrei Mureșanu oferă acces rapid către centru, fiind una dintre cele mai apreciate zone pentru birouri boutique.
Potrivit pentru:
• firme mici sau start-up-uri (IT, marketing, contabilitate, consultanță);
• avocați, notari, arhitecți, designeri;
• cabinete de psihologie, coaching, terapii;
• freelanceri sau echipe de 3–8 persoane;
• activități de tip office sau servicii profesionale.
Pentru detalii suplimentare și programarea vizionării, vă stau la dispoziție.
Specificatii
Curent
Apa
Canalizare
Convectoare
Vopsea lavabila
Gresie
Ferestre Termopan
Partial mobilat





