Esti interesat de aceasta proprietate ?
Camere
3
Suprafata utila
107 mp
An constructie
2025
- ID:P597
- Nr. camere:3
- S. utila:107.00 mp
- Comp.:Compartimentat
- Nr. bai:2
- An constructie:2025
- Structura rezistenta:Beton
- Tip imobil:Bloc
- Regim inaltime:P+4
- Garantie:1
Descriere
Se oferă spre închiriere un spațiu comercial cu vizibilitate excelentă, situat stradal, într-o zonă aflată într-o continuă dezvoltare, cu trafic pietonal constant și expunere foarte bună.
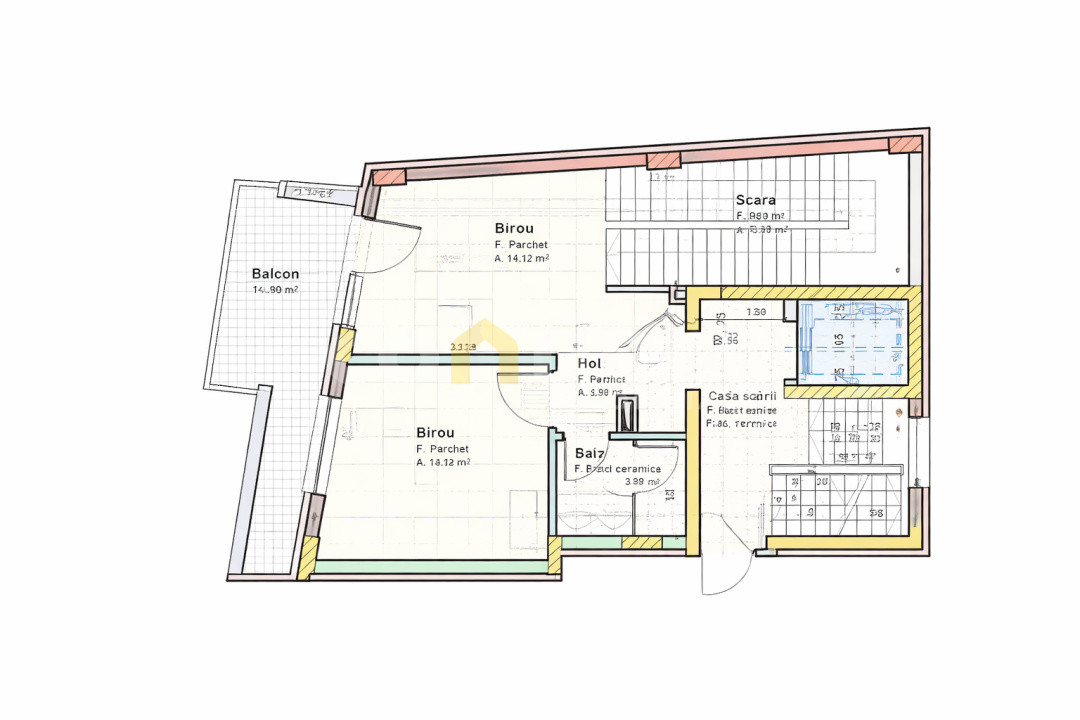
Dispus pe două niveluri, are o suprafață totală de 107 mp, distribuita astfel:
Parter – 55 mp, open space cu vitrină generoasă la stradă;
Etaj – 52 mp, compartimentat în două birouri.
Parterul impresionează prin înălțimea spectaculoasă de 5 metri, oferind un impact vizual puternic și posibilitatea amenajării unui spațiu cu adevărat reprezentativ.
Etajul, accesibil prin scară interioară, este perfect pentru zonă administrativă, birouri, consultanță sau spațiu de lucru separat de zona de prezentare.
Localizare & Avantaje
Zona este într-o dezvoltare accelerată, ceea ce asigură flux constant de potențiali clienți.
În imediata apropiere regăsim: restaurante și cafenele, supermarket-uri, unități de învățământ, sală de fitness cu piscină, zone verzi pentru promenadă, multiple clădiri office cu angajați activi zilnic.
Mixul rezidențial + office generează trafic pietonal pe tot parcursul zilei, ceea ce face spațiul potrivit pentru activități comerciale sau servicii premium.
Potrivit pentru: showroom/concept store, clinică/cabinet, salon premium, agenție, firmă de consultanță, studio design/arhitectură/IT, sediu reprezentativ.
Este genul de spațiu care oferă nu doar funcționalitate, ci și prezență.
Pentru mai multe detalii sau pentru programarea unei vizionări, vă invit să mă contactați cu încredere.
Citeste mai mult
Dispus pe două niveluri, are o suprafață totală de 107 mp, distribuita astfel:
Parter – 55 mp, open space cu vitrină generoasă la stradă;
Etaj – 52 mp, compartimentat în două birouri.
Parterul impresionează prin înălțimea spectaculoasă de 5 metri, oferind un impact vizual puternic și posibilitatea amenajării unui spațiu cu adevărat reprezentativ.
Etajul, accesibil prin scară interioară, este perfect pentru zonă administrativă, birouri, consultanță sau spațiu de lucru separat de zona de prezentare.
Localizare & Avantaje
Zona este într-o dezvoltare accelerată, ceea ce asigură flux constant de potențiali clienți.
În imediata apropiere regăsim: restaurante și cafenele, supermarket-uri, unități de învățământ, sală de fitness cu piscină, zone verzi pentru promenadă, multiple clădiri office cu angajați activi zilnic.
Mixul rezidențial + office generează trafic pietonal pe tot parcursul zilei, ceea ce face spațiul potrivit pentru activități comerciale sau servicii premium.
Potrivit pentru: showroom/concept store, clinică/cabinet, salon premium, agenție, firmă de consultanță, studio design/arhitectură/IT, sediu reprezentativ.
Este genul de spațiu care oferă nu doar funcționalitate, ci și prezență.
Pentru mai multe detalii sau pentru programarea unei vizionări, vă invit să mă contactați cu încredere.
Specificatii
Curent
Apa
Canalizare
Gaz
Acces internet
Utilitati in zona
Centrala proprie
Izolatie Exterior
Ferestre PVC
Lumina naturala
Nemobilat
Interfon
Videointerfon
Lift
Curatenie
Supraveghere video









