Apartament de vânzare | 3 camere, SU 62 mp, terasa 13mp | Urusagului - Florești
Floresti, Sesul de Sus
93.000€







Esti interesat de aceasta proprietate ?
Camere
3
Suprafata utila
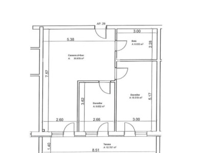
62.35 mp
Etaj
Etaj 3
Bai
1
- ID:P324
- Nr. camere:3
- Nr. dormitoare:2
- S. utila:62.35 mp
- S. terase:12.75 mp
- Etaj:Etaj 3
- Nr. bucatarii:1
- Nr. bai:1
- Tip imobil:Bloc
- Regim inaltime:P+3
- Orientare:Sud
Descriere
Apartamentul este situat la etajul 3 și beneficiază de o terasă generoasă de 13 mp.
Configurația interioară este eficient gândită – acces direct pe terasă atât din living, cât și din dormitor. Se poate iesi in balconul cu suprafata extinsa din toate dormitoarele.
Bucătăria este separată, iar baia este prevăzută cu cadă, cu posibilitatea de a fi adaptată pentru cabina de duș, în funcție de preferințele viitorului proprietar.
Comlplexul de apartamente este prevazut si cu multiple spatii verzi si spatii de joaca pentru copii.
La dorinta clientului, se poate achizitiona separat atat parcare subterana cat si parcare exterioara.
Citeste mai mult
Configurația interioară este eficient gândită – acces direct pe terasă atât din living, cât și din dormitor. Se poate iesi in balconul cu suprafata extinsa din toate dormitoarele.
Bucătăria este separată, iar baia este prevăzută cu cadă, cu posibilitatea de a fi adaptată pentru cabina de duș, în funcție de preferințele viitorului proprietar.
Comlplexul de apartamente este prevazut si cu multiple spatii verzi si spatii de joaca pentru copii.
La dorinta clientului, se poate achizitiona separat atat parcare subterana cat si parcare exterioara.
Specificatii
Curent
Apa
Canalizare
Gaz
Localizare
Recomandari
TOP
0% comision
Apartament 2 camere | FINISAT | SU 52 mp | Balcon 8 mp | Florești
Sesul de Sus
96.000€
0% comision
Reprezentare exclusiva
Apartament de vânzare | 3 camere | Str. Eroilor, Florești sens giratoriu
Eroilor
104.000€
0% comision
Apartament 3 Camere de Vânzare | SU 60.07 mp | Florești, zona Terra
Sesul de Sus
90.105€